J6 Betriebsgebäude
PLANUNG ,BAUANTRAG UND BAU ..
Firma Mader Systemtechnik aus Freudenstadt expandiert und wächst.
Ein neuer Standort ist verkehrtechnisch gut angebunden gefunden.
Das Gebäude wir als Plus-Energie-Gebäude geplant, produziert mehr Energie als benötigt wird.
Strom für Arbeitsgeräte und Mobilität im Überfluss.
Das ist die Zukunft des Bauens und Arbeitens..
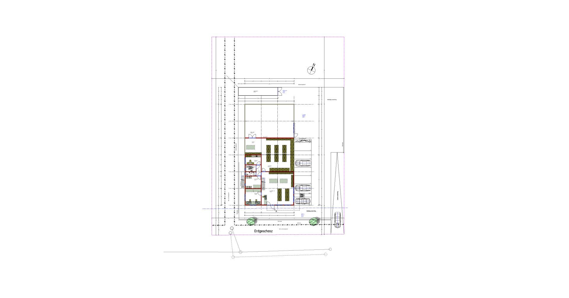
Der Ausstellungsbereich bietet Platz für die gesamte Produktpalette.
Werkstatt und Gross-Lager sichern eine zügige Abwicklung.
Lebenswerte Arbeitsplätze sichern das Wohlbefinden der Belegschaft und sind für effektives und freudiges Arbeiten verantwortlich.
www.mader-systemtechnik.de
Die Baustelle beginnt, Aushub und Entwässerung sind gelegt.
Die Bodenplatte wurde an 10.12.2019 bei strahlendem Sonnenschein betoniert.
Fertigstellung Mitte 2020
Firma Mader Systemtechnik aus Freudenstadt expandiert und wächst.
Ein neuer Standort ist verkehrtechnisch gut angebunden gefunden.
Das Gebäude wir als Plus-Energie-Gebäude geplant, produziert mehr Energie als benötigt wird.
Strom für Arbeitsgeräte und Mobilität im Überfluss.
Das ist die Zukunft des Bauens und Arbeitens..
Der Ausstellungsbereich bietet Platz für die gesamte Produktpalette.
Werkstatt und Gross-Lager sichern eine zügige Abwicklung.
Lebenswerte Arbeitsplätze sichern das Wohlbefinden der Belegschaft und sind für effektives und freudiges Arbeiten verantwortlich.
www.mader-systemtechnik.de
Die Baustelle beginnt, Aushub und Entwässerung sind gelegt.
Die Bodenplatte wurde an 10.12.2019 bei strahlendem Sonnenschein betoniert.
Der Stahlbau mit Aussenhülle ist am 06. März. 2020 fertiggestellt.
01.04.2020 Beginn Montage Photovoltaik-Anlage
Der Ausbau kann beginnen.Fertigstellung Mitte 2020









